30/11/2020
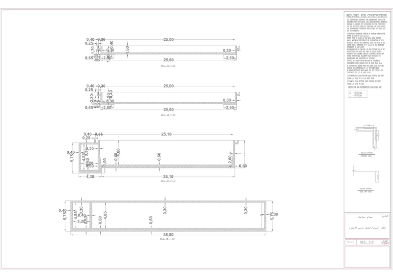
Our team was honored to contribute to the construction of this state-of-the-art Olympic pool. A masterpiece of both form and function, this project pushed the boundaries of aquatic architecture. From the sleek, hydrodynamic lanes to the advanced water filtration system, every detail was meticulously planned and executed to ensure optimal performance and safety.





